Aller à :

  • Aller à la recherche
  • Aller au menu principal
  • Aller au contenu
0
  • Ventes
  • Biens vendus
  • Estimation
  • VIDÉO DRONE ET PHOTOS HD
  • équipe
  • Contact
  • avis
  • Nos honoraires
0
VotreRecherche
Dans un rayon de
Budget
entre et €
Min €
Max €
  1. Accueil
  2. Vente
  3. Maine et loire
  4. St lezin
  5. Maison
  6. T4
  7. Pavillon recent de plain pied

Pavillon récent de plain-pied Saint-Lézin (49120)

Réf : M1261
Vendu

Présentation

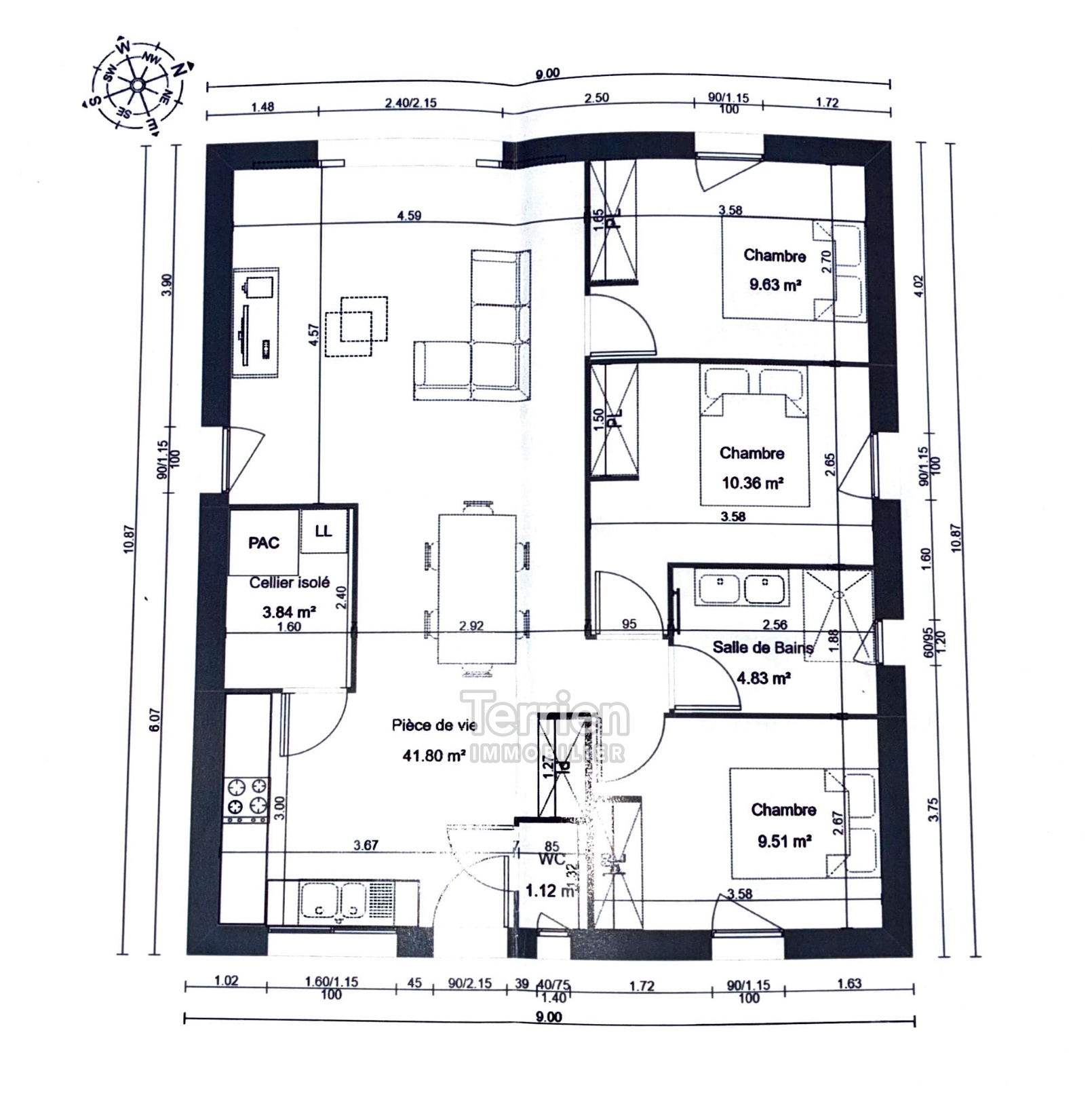
VENDU Chez TERRIEN IMMOBILIER. Sur la commune de Saint Lézin, à seulement 8 minutes de Chemillé et de l’autoroute A87, au calme d’une impasse, posez vos meubles dans cette maison non-mitoyenne sortie de terre en 2024 (Maisons Ericlor), bénéficiant d’une vie complète de plain-pied et d’un excellent DPE. La maison s’ouvre sur une belle pièce de vie de plus de 40m² à la lumière traversante, qui se compose d’une cuisine meublée et équipée avec îlot central, et d’un séjour-salon ouvert vers l’extérieur via une baie vitrée à galandage. Vous retrouverez également 3 chambres avec dressing, une salle d’eau avec douche à l’italienne et un meuble double-vasques, ainsi qu’un espace cellier accueillant la pompe à chaleur et l’adoucisseur d’eau Culligan. L’ensemble des huisseries sont équipées de volets roulants motorisés pouvant être pilotés via domotique. Vous pourrez profiter de l’extérieur grâce à la parcelle de 471m², et stationner plusieurs véhicules à l’avant. Ce bien se trouve être fonctionnel et prêt à l’emploi. DPE A. TERRIEN IMMOBILIER.

Les informations sur les risques auxquels ce bien est exposé sont disponibles sur le site www.georisques.gouv.fr. Pour plus d'informations ou pour organiser une visite, contactez Aymeric Viot : 06 03 77 04 02. Agent commercial - EI VIOT AYMERIC - immatriculé au R.S.A.C. d'Angers sous le numéro 977866425.

Les infos
essentielles

Caractérisque Valeurs
Code postal 49120
Surface habitable (m²) 81 m²
surface terrain 471 m²
Nombre de chambre(s) 3
Nombre de pièces 4

Les + du bien

Détails +

Caractérisque Valeurs
Nb de salle d'eau 1
Cuisine Américaine
Type de cuisine Equipée
Mode de chauffage Pompe à chaleur
Type de chauffage TRAD_TYPE_CHAUFF_AIR_EAU
Format de chauffage Individuel
Exposition Ouest
Année de construction 2024

DPE

DPE GES

Copropriété

Caractérisque Valeurs
Copropriété NON

Quartier

Nos outils
Imprimer Imprimer
Partager le bien
Calculatrice financière

* Champ obligatoire

Partager l'annonce

* champs obligatoires

Les informations recueillies sur ce formulaire sont enregistrées dans un fichier informatisé par La Boite Immo agissant comme Sous-traitant du traitement pour la gestion de la clientèle/prospects de l'Agence / du Réseau qui reste Responsable du Traitement de vos Données personnelles. La base légale du traitement repose sur l'intérêt légitime de l'Agence / du Réseau. Elles sont conservées jusqu'à demande de suppression et sont destinées à l'Agence / au Réseau. Conformément à la loi « informatique et libertés », vous disposez des droits d’accès, de rectification, d’effacement, d’opposition, de limitation et de portabilité de vos données. Vous pouvez retirer votre consentement à tout moment en contactant directement l’Agence / Le Réseau. Consultez le site https://cnil.fr/fr pour plus d’informations sur vos droits. Si vous estimez, après avoir contacté l'Agence / le Réseau, que vos droits « Informatique et Libertés » ne sont pas respectés, vous pouvez adresser une réclamation à la CNIL. Nous vous informons de l’existence de la liste d'opposition au démarchage téléphonique « Bloctel », sur laquelle vous pouvez vous inscrire ici : https://www.bloctel.gouv.fr Dans le cadre de la protection des Données personnelles, nous vous invitons à ne pas inscrire de Données sensibles dans le champ de saisie libre.
Ce site est protégé par reCAPTCHA, les Politiques de Confidentialité et les Conditions d'Utilisation de Google s'appliquent.

Partager avec vos proches

Facebook Facebook
Messenger Messenger
Twitter Twitter
WhatsApp WhatsApp
LinkedIn LinkedIn
Copier le lien Copier le lien
Détail des diagnostics énergétiques
DPE GES

Montant estimé des dépenses annuelles d'énergie de ce logement pour un usage standard est compris entre 310 € et 460 € . 2021 étant l'année de référence des prix de l'énergie utilisés pour établir cette estimation.

Contacter
l'agence

Remplissez ce formulaire, nous ferons de notre mieux pour vous répondre dans les meilleurs délais.

TERRIEN IMMOBILIER
+33 7 67 08 94 02
E-mail terrien.immobilier@gmail.com

24 Rue Carnot 49290 Chalonnes-sur-Loire

TRAD_MELTEM_voscoordonnees
TRAD_MELTEM_voredemande
Règlementation

* Champ obligatoire

Les informations recueillies sur ce formulaire sont enregistrées dans un fichier informatisé par La Boite Immo agissant comme Sous-traitant du traitement pour la gestion de la clientèle/prospects de l'Agence / du Réseau qui reste Responsable du Traitement de vos Données personnelles. La base légale du traitement repose sur l'intérêt légitime de l'Agence / du Réseau. Elles sont conservées jusqu'à demande de suppression et sont destinées à l'Agence / au Réseau. Conformément à la loi « informatique et libertés », vous disposez des droits d’accès, de rectification, d’effacement, d’opposition, de limitation et de portabilité de vos données. Vous pouvez retirer votre consentement à tout moment en contactant directement l’Agence / Le Réseau. Consultez le site https://cnil.fr/fr pour plus d’informations sur vos droits. Si vous estimez, après avoir contacté l'Agence / le Réseau, que vos droits « Informatique et Libertés » ne sont pas respectés, vous pouvez adresser une réclamation à la CNIL. Nous vous informons de l’existence de la liste d'opposition au démarchage téléphonique « Bloctel », sur laquelle vous pouvez vous inscrire ici : https://www.bloctel.gouv.fr Dans le cadre de la protection des Données personnelles, nous vous invitons à ne pas inscrire de Données sensibles dans le champ de saisie libre.
Ce site est protégé par reCAPTCHA, les Politiques de Confidentialité et les Conditions d'Utilisation de Google s'appliquent.

Se connecter
Espace propriétaire
Page d'accueil
Adhérents

© 2026 | Tous droits réservés | Traduction powered by Google |

  • Nos honoraires
  • Plan du site
  • Mentions légales
  • Admin
  • Nos liens
  • Politique RGPD
  • LinkedIn

Comme beaucoup, notre site utilise les cookies

On aimerait vous accompagner pendant votre visite. En poursuivant, vous acceptez l'utilisation des cookies par ce site, afin de vous proposer des contenus adaptés et réaliser des statistiques !

Paramétrer

Cookies fonctionnelsCes cookies sont indispensables à la navigation sur le site, pour vous garantir un fonctionnement optimal. Ils ne peuvent donc pas être désactivés.

Statistiques de visitesPour améliorer votre expérience, on a besoin de savoir ce qui vous intéresse !
Les données récoltées sont anonymisées.

?

Google Analytics

En savoir plus